Описание
Обновленная двухдорожечная система TopLine L для раздвижных дверей с верхним ходовым элементом.
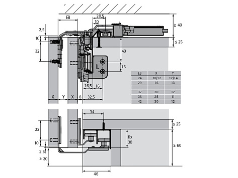
Установка ходового профиля перед верхней панелью позволяет изготавливать шкафы с минимальным зазором от потолка (<= 20 мм).
Профиль имеет паз для крепления снизу через верхнюю панель.
Механизм универсален с точки зрения ограничения хода. Подходит для варианта открывания дверей с ограничением за ручку и без ограничения с полным наложением фасадов.
Вогнутая форма верхнего ролика в совокупности с алюминиевым профилем дают очень низкий уровень шума при движении и менее подвержена загрязнению.
Регулируемая монтажная ширина механизмов позволяет использовать один комплект фурнитуры для нескольких толщин фасадов
Нижние направляющие элементы защищены от поломки при установке двери на пол перед монтажом
Демпфирование на закрывание и открывание всех дверей обеспечивает максимальный комфорт при эксплуатации.
Демпферы точно регулируются под вес двери. Располагаются на верхнем профиле и внутренней стороне двери и не занимают пространство внутри шкафа.
TopLine L NEW это идеальное сочетание комфорта, функциональности и цены.
Расчёт, монтаж и регулировка обновлённой системы стал существенно удобнее.
Система прошла тестирование на 40 000 циклов открывания/закрывания.
В состав набора входит фурнитура необходимая для сборки шкафа в том числе Стяжки-выпрямители для фасадов
Дополнительно можно приобрести:
- комплект демпферов Silent System на соударение задних дверей. Рекомендуется для тяжелых фасадов
- декоративный гибкий профиль для ходового профиля белого или черного цвета.
- соединительные пластины и Ручку-профиль для сборки комбинированных дверей.
При необходимости из комплектации можно исключить комплекты демпферов на открывание. Демпферы на закрывание являются обязательными.
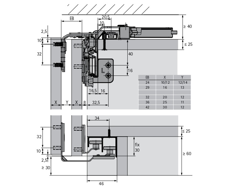
Установка ходового профиля перед верхней панелью позволяет изготавливать шкафы с минимальным зазором от потолка (<= 20 мм).
Профиль имеет паз для крепления снизу через верхнюю панель.
Механизм универсален с точки зрения ограничения хода. Подходит для варианта открывания дверей с ограничением за ручку и без ограничения с полным наложением фасадов.
Вогнутая форма верхнего ролика в совокупности с алюминиевым профилем дают очень низкий уровень шума при движении и менее подвержена загрязнению.
Регулируемая монтажная ширина механизмов позволяет использовать один комплект фурнитуры для нескольких толщин фасадов
Нижние направляющие элементы защищены от поломки при установке двери на пол перед монтажом
Демпфирование на закрывание и открывание всех дверей обеспечивает максимальный комфорт при эксплуатации.
Демпферы точно регулируются под вес двери. Располагаются на верхнем профиле и внутренней стороне двери и не занимают пространство внутри шкафа.
TopLine L NEW это идеальное сочетание комфорта, функциональности и цены.
Расчёт, монтаж и регулировка обновлённой системы стал существенно удобнее.
Система прошла тестирование на 40 000 циклов открывания/закрывания.
В состав набора входит фурнитура необходимая для сборки шкафа в том числе Стяжки-выпрямители для фасадов
Дополнительно можно приобрести:
- комплект демпферов Silent System на соударение задних дверей. Рекомендуется для тяжелых фасадов
- декоративный гибкий профиль для ходового профиля белого или черного цвета.
- соединительные пластины и Ручку-профиль для сборки комбинированных дверей.
При необходимости из комплектации можно исключить комплекты демпферов на открывание. Демпферы на закрывание являются обязательными.
Состав комплекта
Код
Название
Цена за единицу
Количество
Артикул
125842
Цена за единицу
17013.54
Количество
1 шт
Артикул
125853
Цена за единицу
12311.59
Количество
1 шт
Артикул
125846
Цена за единицу
14386.68
Количество
1 шт
Артикул
117044
Цена за единицу
3235.29
Количество
6 шт
Артикул
125850
Цена за единицу
8682.91
Количество
1 шт Сопутствующие товары
Все
14
Буферная лента и уплотнители
1
Системы раздвижных дверей Hettich
1
Декоративные панели на основе МДФ
Код
Название
Цена за единицу
Артикул
103578
Цена за единицу
26.34 руб.
Артикул
125852
Цена за единицу
1 715.36 руб. Видео по товару
Обновления и изменения систем фурнитуры для раздвижных дверей TopLine L и TopLine XL